Barrier Gate/ Turnstile
Specification
| Housing material | Standard 304 stainless steel |
| Thickness | 2.0mm thickness |
| Working voltage | AC220±10%V 50±10%HZ |
| Driving motor | Servo motor |
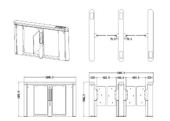
| Size | L1600*W160*H1060mm |
| Swing length | 290 mm |
| Max Passage width | 1200mm |
| Direction | single or bi-directional (optional) |
| Working environment | indoor/outdoor (with a roof) -10°C~70°C |
| Relative humidity | ≤90% coagulation free |
| Time of opening/closing | 1 second |
| Pass speed | 25-30 persons/min (closed) |
| Time to work after power on | 3 seconds |
| Reset time after break down | 10 seconds |
| Normal running life | more than 5 million |
| Communication interface | standard RS485 interface, distance ≤1200m |
| Input interface | +12V level signal or pulse width >100ms 12V pulse, drive current >10mA |




